STUDIOQUINT ARCHITECTUUR INTERIEUR SERVICE

studio-

studioquint is als architectenbureau werkzaam op het gebied van nieuwbouw, transformatie en renovatie van monumenten. Wij zijn gevestigd aan de rand van het Mediapark, in de schaduw van het Avrotros gebouw, tussen de bomen van het Goois Natuurreservaat.

Al meer dan 20 jaar werken wij in een klein team met passie voor particuliere en zakelijke opdrachtgevers.

Met onze ontwerpbenadering pogen wij om een progressieve houding aan te nemen.

Nieuwe materialen, een groeiend bewustzijn voor duurzaamheid en circulariteit 

zijn welkom en vormen de basis voor een comfortabel en esthetisch hoogwaardig resultaat. 

Een deel van onze gerealiseerde projecten zijn internationaal gepubliceerd en opgenomen 

in databases zoals DivisareDesignboom en Dezeen.  

inzet

onze ambitie is om hoogwaardige gebouwen en interieurs te maken die voldoen aan alle eisen die onze opdrachtgevers aan ons stellen. Als ontwerpers gaan we op zoek naar de bijzondere kwaliteit die in elk project schuilt. Een keer ontdekt proberen we deze uit te vergroten, als leidraad te gebruiken en ervaarbaar te maken.

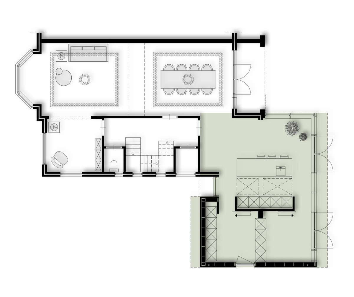
plattegrond

We zien de plattegrond als een belangrijk middel om het programma en de wensen van onze opdrachtgevers op een intuïtieve, “work in progress” achtige manier te communiceren. In nauw overleg neemt de lijst van wensen, eisen en ideeën vorm aan, worden er verhoudingen, functionele verbanden, ruimtelijke kwaliteiten en lichtvoering zichtbar. Door al in een vroeg stadium van het ontwerp rekening te houden met bestaande maatvoering en mogelijke toekomstige inrichting is er voldoende tijd om gemaakte keuzes te laten “rijpen” en zo nodig te herzien totdat het gewenste resultaat bereikt is. Een optimale plattegrond is praktisch en ruimtelijk integrerend tegelijkertijd.

plattegrond studio

materiaal

houden we graag eenvoudig en zo natuurlijk mogelijk. Hout, beton en steen zijn materialen die door middel van een zorgvuldige toepassing de werking van licht en schaduw op een gecontroleerde manier kunnen beïnvloeden. Materialen maken kleur. Door bepaalde producten vaak te hebben toegepast hebben wij de nodige kennis opgedaan voor de juiste behandeling en detaillering. Vergrijzend hout zal alleen bij de juiste toepassing op een mooie manier verouderen.   

materiaal-studio

proces

een geoptimaliseerd proces speelt een cruciale rol om de gezamenlijk gestelde doelen te bereiken. Studioquint ontzorgt haar opdrachtgevers door het vergunningstraject soepel te laten verlopen, adviseert op het gebied van regelgeving en vergunningsvrij bouwen en beschikt over een uitgebreid netwerk van uitvoerende partijen.

profiel-foto

Oliver Ebben is in Duitsland opgegroeid en als architect opgeleid. Na zijn studie heeft hij vanaf 2001 als beginnend ontwerper ervaring opgedaan bij toonaangevende bureaus in Amsterdam, waaronder Kaan architecten, VMX architects en Hofman Dujardin. Als vast docent is hij al meer dan 15 jaar betrokken bij de opleiding van jong talent aan de TU Delft. Oliver is architect lid van de commissie ruimtelijke kwaliteit en erfgoed bij de gemeente Gooise Meren en tevens monumentendeskundige bij de commissie ruimtelijke kwaliteit in Huizen.